Opções de Comando no AutoCAD: Como Usar

As opções de comando no AutoCAD são recursos fundamentais para ganhar agilidade durante a criação de desenhos técnicos. Elas permitem executar ações como desfazer, fechar contornos, sair ou repetir comandos com mais precisão. Neste artigo, você vai entender como essas opções funcionam na prática e como aproveitá-las para aumentar sua produtividade no AutoCAD 2D.
1. O que são opções de comando no AutoCAD
As opções de comando no AutoCAD são funcionalidades contextuais que aparecem durante a execução de comandos, oferecendo caminhos alternativos de ação, como Close, Undo, Cancel, entre outras. Elas permitem que o usuário modifique o comportamento do comando ativo sem precisar cancelá-lo ou iniciar um novo processo, tornando o fluxo de trabalho mais fluido e produtivo.
Ao acionar comandos como LINE, por exemplo, o AutoCAD disponibiliza opções na linha de comando ou no cursor (quando o Dynamic Input está ativado). Essas opções permitem, por exemplo, fechar uma sequência de linhas com Close, desfazer o último segmento com Undo ou sair do comando com Enter. Todas essas são consideradas opções de comando.
O acesso pode ser feito de várias formas: digitando a letra correspondente, clicando com o botão direito do mouse, utilizando as setas direcionais ou ainda clicando diretamente nas sugestões apresentadas pelo AutoCAD. Isso torna o uso do software mais intuitivo, especialmente para quem já possui certa familiaridade com os comandos principais.
Dominar essas opções é essencial para aumentar a produtividade, evitar erros e reduzir o tempo de edição. Em vez de cancelar e refazer, o usuário pode ajustar rapidamente o que está sendo desenhado, mantendo o controle total do processo.
2. Acessando opções de comando com atalhos e cliques
As opções de comando no AutoCAD podem ser acessadas de maneiras diferentes, dependendo da configuração da interface e do comando em execução. O principal objetivo é facilitar a interação com o software, reduzindo a necessidade de memorizar comandos complexos e permitindo ajustes dinâmicos diretamente no fluxo de trabalho.
Quando um comando está ativo — como o LINE —, o AutoCAD exibe opções adicionais no prompt ou junto ao cursor, especialmente se o Dynamic Input estiver habilitado. Por exemplo, após desenhar alguns segmentos com o comando LINE, o AutoCAD pode exibir opções como Close (fechar o contorno) ou Undo (desfazer o último segmento). Essas ações podem ser executadas clicando diretamente sobre o texto sugerido ou digitando a primeira letra da opção, seguida da tecla Enter.
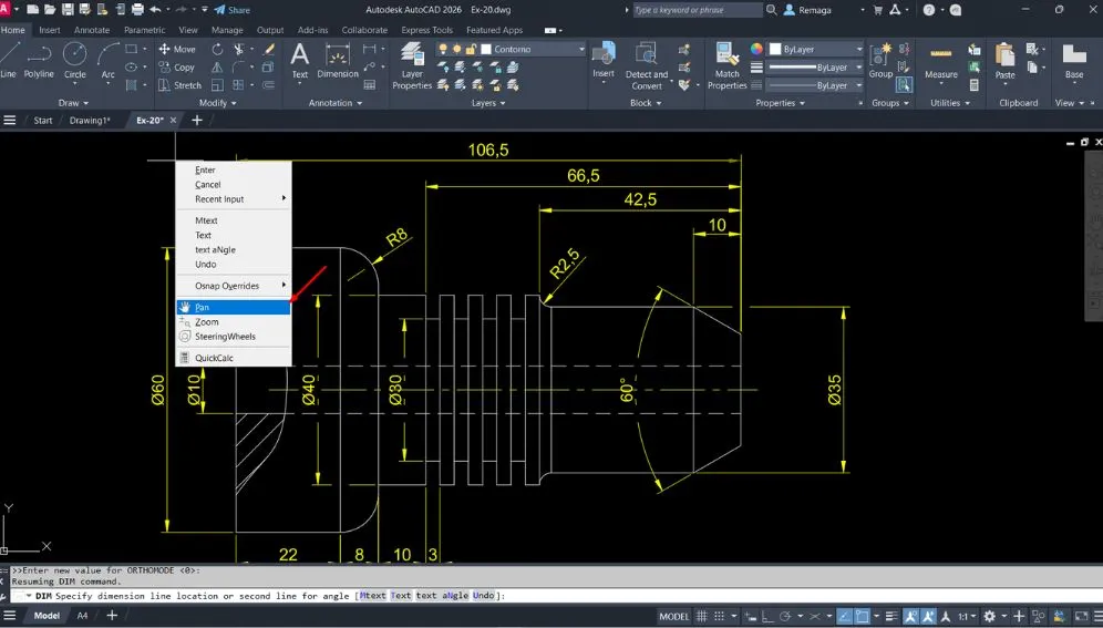
Outra forma prática de acessar essas opções é utilizando o botão direito do mouse. Ao clicar com o botão direito durante um comando, um menu de contexto aparece com opções como Enter, Cancel, Recent Input, Pan, Zoom, entre outras. Essas ferramentas permitem navegar, corrigir ou finalizar comandos com rapidez.
Além disso, ao pressionar a seta direcional para baixo, o AutoCAD apresenta uma lista suspensa com as opções disponíveis naquele momento, funcionando como um atalho interativo. Esse recurso é especialmente útil para iniciantes, pois evita a necessidade de lembrar atalhos ou nomes exatos de comandos.
Ao combinar cliques, atalhos e menus contextuais, o usuário pode operar o AutoCAD de forma mais eficiente e personalizada, explorando ao máximo os recursos oferecidos por cada comando.
Domine opções de comando e edite com mais precisão
Ao usar comandos como LINE, você pode acessar opções como Close, Undo ou Enter sem precisar reiniciar o processo.
Saber usar essas opções economiza tempo, evita retrabalho e torna o fluxo no AutoCAD muito mais eficiente.
Quero aprender com praticidade3. Funções práticas como Close, Undo e Pan

Durante o uso do AutoCAD, algumas opções de comando se destacam por sua utilidade no dia a dia do desenho técnico. Entre as mais comuns estão Close, Undo e Pan, cada uma permitindo interações precisas com o desenho sem a necessidade de interromper o fluxo do comando atual.
A opção Close é amplamente usada com comandos como LINE ou POLYLINE. Ao desenhar uma sequência de segmentos, ao invés de conectar manualmente o último ponto ao primeiro, o usuário pode apenas acionar o Close. O AutoCAD reconhece o primeiro ponto da sequência e encerra o desenho formando uma figura fechada automaticamente.
Já a opção Undo, quando acessada durante um comando ativo, desfaz o último segmento desenhado, permitindo correções imediatas sem cancelar o comando. É possível utilizá-la digitando U e pressionando Enter, clicando com o botão direito do mouse ou selecionando-a nas opções suspensas que aparecem ao pressionar a seta direcional para baixo.
Outra opção útil é o Pan, que pode ser acessado durante comandos ativos. Ele permite movimentar a área de visualização sem interromper o desenho, algo essencial em projetos maiores ou com muitos detalhes. O comando é temporário: após o deslocamento da tela, o AutoCAD retorna ao comando anterior automaticamente.
Essas funções práticas mostram como o AutoCAD oferece um controle contextual inteligente. Usá-las corretamente ajuda a manter a continuidade do desenho, reduzindo retrabalho e otimizando o tempo de execução das tarefas.
4. Melhores práticas para usar opções de comando
Para tirar o máximo proveito das opções de comando no AutoCAD, é fundamental incorporar algumas boas práticas no seu fluxo de trabalho. Isso garante maior agilidade, precisão e controle durante a criação dos desenhos técnicos, especialmente em ambientes de produção onde o tempo e a qualidade são fatores críticos.
A primeira dica é manter o Dynamic Input ativado. Com esse recurso habilitado, as opções de comando aparecem diretamente no cursor, facilitando o acesso visual e tornando a interação mais rápida. Assim, você não precisa olhar constantemente para a linha de comando na parte inferior da tela.
Outra prática recomendada é familiarizar-se com os atalhos de teclado. Comandos como U para desfazer, C para fechar, ou até barra de espaço para repetir o último comando, tornam o processo muito mais fluido. Esses atalhos funcionam mesmo dentro de comandos ativos, o que economiza tempo ao evitar cancelamentos desnecessários.
O botão direito do mouse também é uma ferramenta poderosa. Durante comandos, ele abre menus contextuais que permitem ações como Enter, Cancel, Zoom e Pan sem a necessidade de digitar. Isso melhora o foco e evita erros de digitação.
Por fim, pratique a observação do prompt de comando e das mensagens que aparecem ao longo do processo. Elas indicam quais opções estão disponíveis em cada etapa e ajudam a desenvolver um raciocínio mais lógico sobre a construção do desenho.
Ao aplicar essas práticas no dia a dia, você ganha confiança no uso do AutoCAD e aproveita todo o potencial das opções de comando para produzir com mais eficiência e qualidade.
5. Fluxo de trabalho com opções de comando no AutoCAD
O fluxo de trabalho no AutoCAD se torna mais eficiente quando o usuário entende como aplicar as opções de comando de forma estratégica durante a execução dos desenhos.
Em vez de tratar essas opções apenas como alternativas ocasionais, o ideal é incorporá-las como parte natural do processo de criação, edição e ajuste dos elementos gráficos.
Durante a execução de comandos como LINE, POLYLINE ou ARC, o AutoCAD disponibiliza ações contextuais que permitem ajustes imediatos.
Isso evita interrupções desnecessárias, como cancelar comandos ou reiniciar processos apenas para corrigir pequenos erros. Com isso, o foco permanece no desenho, e não na interface.
Outro ponto importante é a continuidade operacional. Ao utilizar opções como Close ou Undo no momento certo, o usuário mantém o raciocínio técnico ativo, sem quebrar a sequência lógica do desenho.
Esse comportamento é especialmente útil em tarefas repetitivas, onde a fluidez impacta diretamente a produtividade.
Em ambientes profissionais, essa fluidez se reflete em ganho de tempo real. Pequenas economias de segundos por ação, quando acumuladas ao longo do dia, representam uma redução significativa no tempo total de execução do projeto.
Além disso, o controle fino durante os comandos reduz a incidência de retrabalho.
Do ponto de vista técnico, integrar as opções de comando ao fluxo de trabalho significa compreender o que o AutoCAD oferece em cada etapa do comando ativo.
O usuário passa a antecipar as opções disponíveis, tomando decisões mais rápidas e seguras. Esse domínio é um diferencial claro entre um uso básico e um uso profissional do software.
6. Integração das opções de comando com produtividade e controle
A produtividade no AutoCAD não depende apenas da velocidade de execução dos comandos, mas do nível de controle que o usuário mantém durante o processo.
Nesse cenário, as opções de comando desempenham um papel essencial ao permitir ajustes precisos sem a necessidade de interromper a ação em andamento.
Quando o usuário domina essas opções, erros simples deixam de exigir cancelamentos completos. Um segmento desenhado incorretamente pode ser desfeito instantaneamente, e um contorno pode ser fechado com precisão sem cálculos manuais adicionais.
Isso aumenta a confiabilidade do desenho e reduz inconsistências geométricas.
Outro fator relevante é a previsibilidade do comportamento do software. Ao trabalhar com opções contextuais, o AutoCAD responde de forma consistente às intenções do usuário.
Essa previsibilidade diminui a chance de comandos indesejados e melhora a precisão geral do projeto, especialmente em desenhos técnicos detalhados.
Além disso, o uso integrado dessas opções contribui para um ambiente de trabalho mais confortável. Menos cliques excessivos e menos reinícios de comandos reduzem a fadiga operacional.
Em projetos longos, esse aspecto influencia diretamente a qualidade final do trabalho.
Em equipes técnicas, o domínio das opções de comando também favorece a padronização dos processos.
Quando todos utilizam os mesmos recursos contextuais, o resultado tende a ser mais uniforme, facilitando revisões, correções e compatibilizações.
Assim, produtividade e controle caminham juntos, sustentados por um uso consciente e técnico do AutoCAD.
✅ Conclusão
O uso correto das Opções de Comando no AutoCAD representa um avanço prático na forma de desenhar e editar projetos técnicos.
Ao permitir ajustes imediatos durante a execução dos comandos, o recurso reduz interrupções e mantém o fluxo de trabalho contínuo.
Quando integradas a boas práticas, essas opções aumentam a precisão, diminuem erros operacionais e reduzem retrabalho.
O usuário passa a interagir com o software de forma mais inteligente, explorando recursos que muitas vezes são subutilizados.
Para quem busca produtividade real e controle técnico no AutoCAD 2D, dominar as Opções de Comando não é apenas uma सुविधा, mas uma habilidade essencial no dia a dia profissional.
Torne seu dia a dia no AutoCAD mais prático e técnico
Aprenda a usar atalhos, prompt de comando e menus contextuais para desenhar com mais agilidade e precisão.
Com um método técnico, você ganha segurança, economiza tempo e produz com mais eficiência.
Quero aprender com técnica





